0
Retour

Colmar (68000)
COLMAR - Beau T1/2 meublé avec goût - Parking

  • à propos de ce
    bien

    * Appartement coup de cœur *

    COLMAR - Proche gare, écoles et autres commodités

    Situé rue Stanislas, en fond d'impasse
    Au premier étage avec ascenseur d'un immeuble de standing
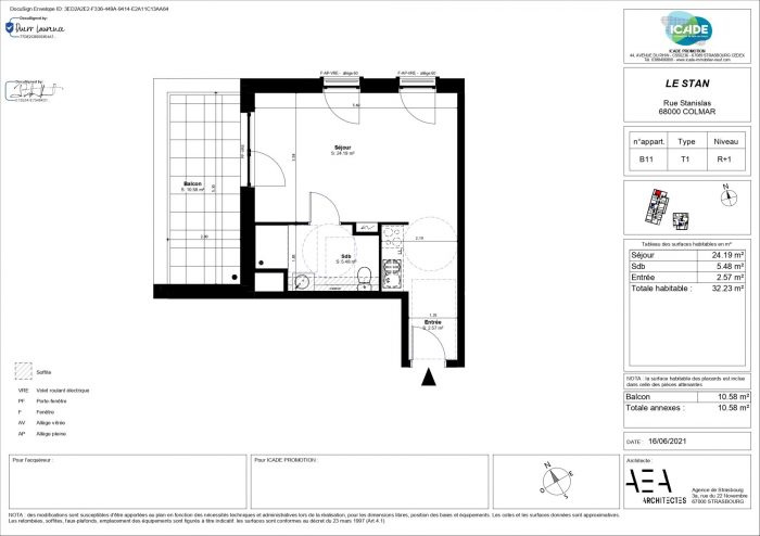
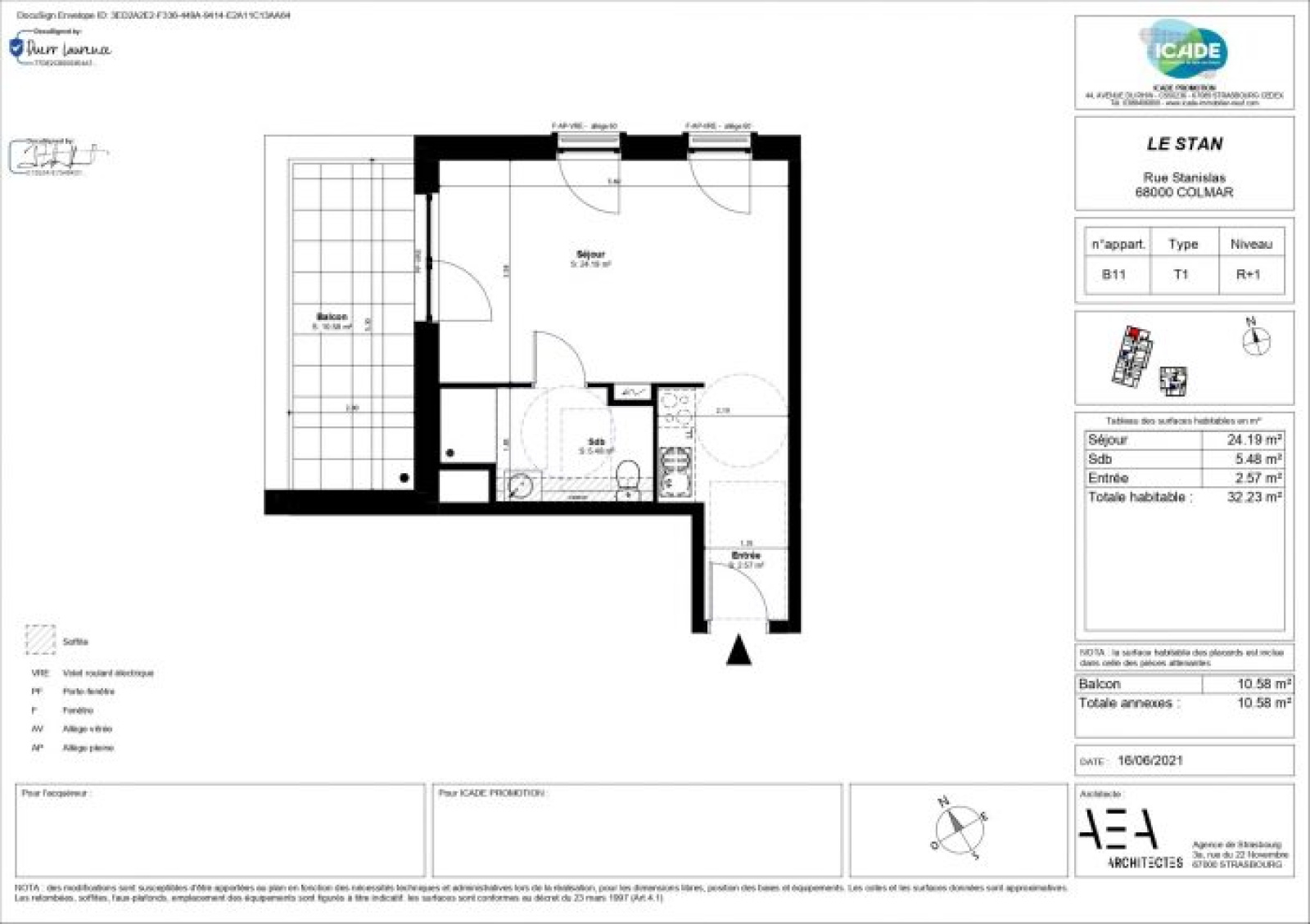
    Appartement type T1/2 entièrement meublé avec goût et d'une superficie de 32.25 m²

    Composé :

    Entrée avec placard
    Cuisine parfaitement équipée (réfrigérateur, plaques, hotte, micro-ondes, ustensiles) avec coin repas
    Salon meublé avec goût permettant l'accès à une terrasse exposée ouest de 10.58 m² (possibilité d'un couchage supplémentaire avec canapé convertible)
    Espace nuit (équipé d'un lit coffre) permettant une séparation avec le séjour
    Grande salle d'eau avec douche, nombreux rangements et toilette

    En annexes : parking privatif en sous-sol et local à vélo commun sécurisés

    Prestations de qualité : volets électrique, isolation dernière génération, ameublement de caractère, ...

    *Chauffage collectif au gaz inclus dans les charges - Faibles consommations - DPE C/C*

    Loyer hors charges : 715 euros / mois
    Charges : 80 euros / mois
    Dépôt de garantie : 1430 euros
    Honoraires à la charge du locataire : 354,75 euros - états des lieux compris

    Contact : Lucas BRESCH au 06.33.97.88.89.

    • Prix
      795 € CC*
    • Code postal
      68000
    • Surface habitable (m²)
      32,25 m²
    • Surface loi Boutin (m²)
      32,25 m²
    • Nombre de chambre(s)
      1
    • Nombre de pièces
      1
    • Meublé
      OUI
    • Etage
      1
    • Nombre de niveaux
      1
    • Ascenseur
      OUI
    • Références
      032
  • Plus d'informations
    financières

    • Loyer CC* / mois
      795 €
    • Honoraires TTC charge locataire
      354,75 €
    • Dont état des lieux
      Non renseigné
    • Dépôt de garantie TTC
      1 430 €
    • Charges locatives (Previsionnelles mensuelles les avec regularisation annuelle)
      80 €
  • Plus de
    détails

    • Nb de salle d'eau
      1
    • Cuisine
      Américaine
    • Type de cuisine
      Equipée
    • Mode de chauffage
      Gaz de ville
    • Type de chauffage
      Au sol
    • Format de chauffage
      Collectif
    • Balcon
      NON
    • Terrasse
      OUI
    • Cave
      NON
    • Exposition
      Ouest
    • Année de construction
      2024
    • Quartier
      Centre
  • la
    copropriété

    • Copropriété
      OUI
  • Bilan
    énergétique

    DPE GES

    Montant estimé des dépenses annuelles d'énergie pour un usage standard est compris entre 354 € et 460 € . Prix moyens des énergies indexés sur les années 2021, 2022 et 2023 (abonnements compris).

Ce bien
m'intéresse

Nos outils

* CC : Charges comprises